Villa singola in vendita

Corchiano, Via Lorenzo da Viterbo
€ 159.000
5 locali 5 locali
210 Mq 210 Mq
2 bagni 2 bagni

Villa singola in vendita

Corchiano, Via Lorenzo da Viterbo

Descrizione annuncio

Villa singola da ristrutturare con giardino e ampi spazi a Corchiano.

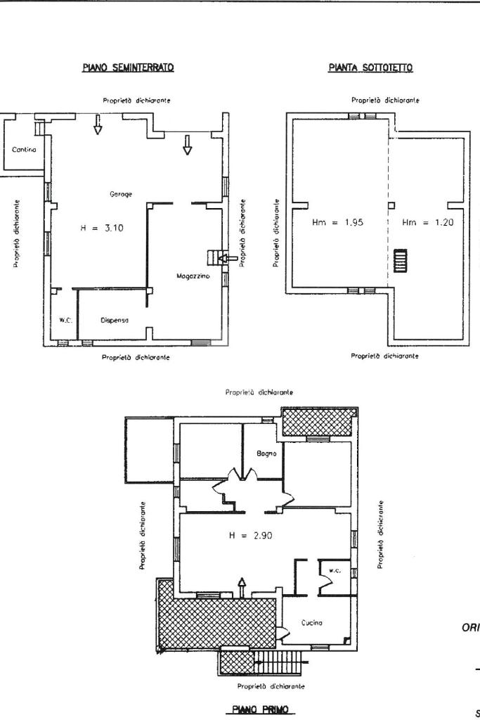
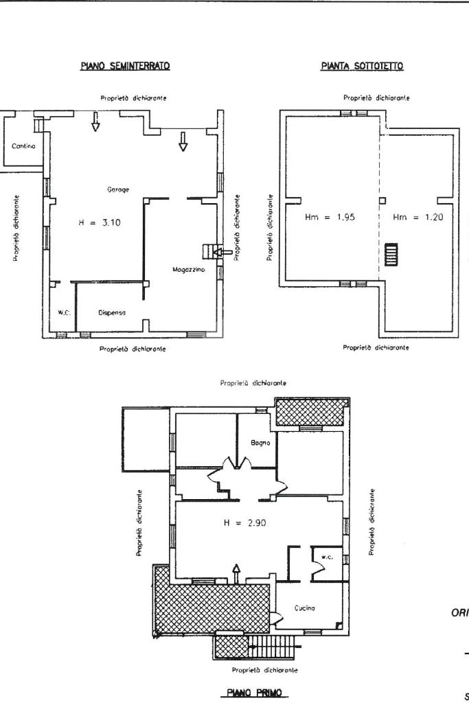
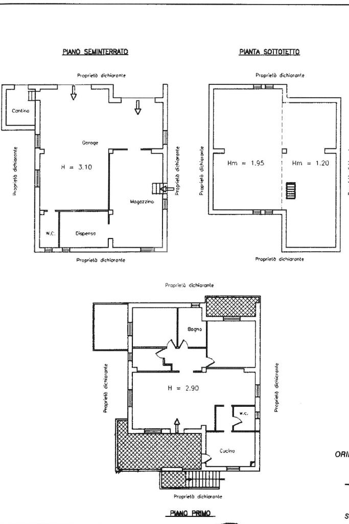
A Corchiano, in una zona tranquilla e riservata, proponiamo in vendita una villa singola da ristrutturare, costruita a metà degli anni ’90, disposta su due livelli e circondata da un giardino privato di circa 600 mq.

L’ingresso si apre su un ampio salone doppio con camino, cuore della zona giorno, da cui si accede sia al bagno di servizio sia alla cucina abitabile, che a sua volta conduce al portico esterno, ideale per pranzi e cene all’aperto. Dal salone si raggiunge la zona notte, composta da due camere matrimoniali — una con terrazzo e l’altra con balcone — una cameretta e un bagno con vasca.

Il piano seminterrato, accessibile solo dall’esterno, ospita una grande taverna con camino e cucina, perfetta per momenti conviviali, e un garage allo stato grezzo di circa 50 mq. Completa la proprietà una mansarda grezza, estesa quanto l’intero piano abitativo e accessibile da scala interna, oltre a una cantina.

L’immobile è collegato alla rete idrica e fognaria comunale ed è servito da un bombolone GPL per il riscaldamento.

Una soluzione interessante per chi desidera una casa indipendente con ampie potenzialità, immersa nel verde, da ristrutturare e modellare secondo i propri gusti e necessità.

Contattaci per maggiori informazioni o per prenotare una visita: siamo a tua disposizione per aiutarti a scoprire tutto il potenziale di questa villa.

Mostra tutto

Nelle vicinanze

Trasporto pubblico Trasporto pubblico
Corchiano
Corchiano
1,9 Km
Farmacia Farmacia
Farmacia Sangiorgi
320 m
Supermercati Supermercati
La Bottega - Simply market
450 m
Ristoranti Ristoranti
La Scaletta
160 m
La Taverna Delle Forre
370 m
Le Rupi
390 m
Millenium
430 m
Ristorante Ragno Rosso
890 m
Mostra tutto

Caratteristiche

Rif.:
61068210
Piano:
Su più livelli di 2
Totale piani:
2
Box:
1
Posti auto:
3
Balconi:
1
Mostra tutto
Prezzo Prezzo
€ 159.000
Rata mutuo Rata mutuo
€ 750 / mese
Spese annue Spese annue
€ 0
Proponi il tuo prezzoProponi il tuo prezzo

Classe Energetica

G
G
G
G
G
G
G
G
G
EP globale non rinnovabile:
175.00 kW h/m² anno
EP globale rinnovabile:
175.00 kW h/m² anno
EP invernale del fabbricato:
EP estiva del fabbricato:
Anno di costruzione:
1995
Riscaldamento:
Autonomo
Tipo impianto:
A radiatori
Tipo alimentazione:
GPL

Ti interessa visionare l'immobile?

Fissa un appuntamento  Fissa un appuntamento

Richiedi informazioni

Clicca su Leggi per aprire l'informativa
* Questi campi sono obbligatori

Calcola il tuo mutuo

Semplice e senza impegno
Anticipo

( % )
Mutuo

( % )

pochi semplici passi

inserisci i tuoi dati
Questionario completato
Grazie per aver richiesto un appuntamento senza impegno con un nostro Consulente del Credito e Assicurativo.

Hai inserito correttamente tutti i dati necessari e a breve riceverai una e-mail con un link da convalidare per inviare i tuoi dati.
Affiliato
Studio Civita Castellana Due Srl
Via San Gratiliano, 24/A 01033 Civita Castellana (VT)
Via San Gratiliano, 24/A 01033 Civita Castellana (VT)
Zona: Civita Castellana-Gallese-Corchiano
Mostra su mappa
Affiliato
Studio Civita Castellana Due Srl
Via San Gratiliano, 24/A 01033 Civita Castellana (VT)

2026 Tecnocasa Franchising S.p.A. - P. IVA 08365160152 - Via Monte Bianco 60/A 20089 Rozzano (MI). Ogni agenzia ha un proprio titolare ed è autonoma. Privacy policy | Policy utilizzo | Cookie policy